Billede af 3 room, 83 sqm, Århus

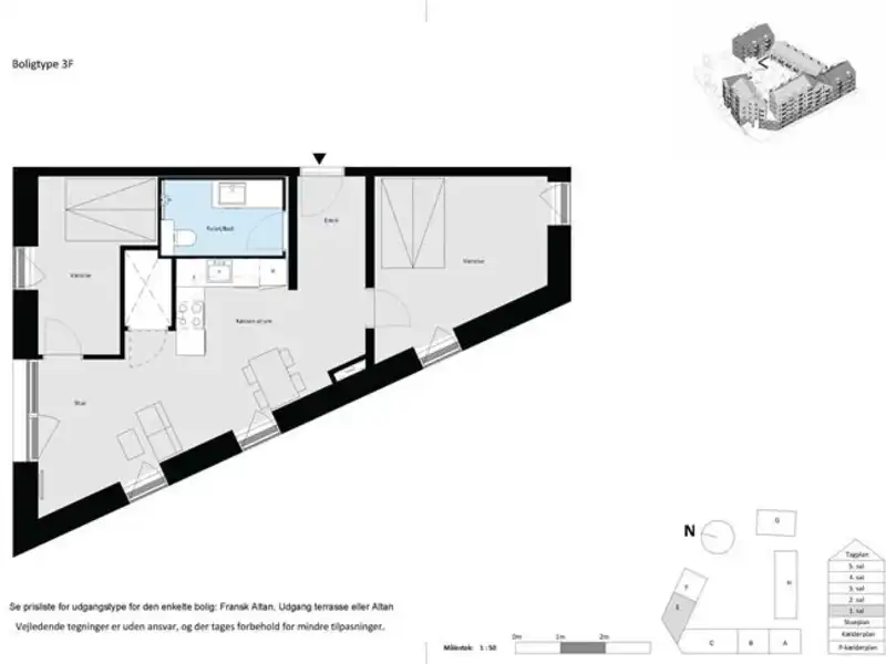
3 Værelses lejlighed på 83 ㎡, 8200 Århus

kr. 11,300/md ekskl. forbrug . Depositum kr. 33,900
Ingen begrænsning, udlejes på en permanent lejekontrakt.
Contact landlord
Annoncen er kontrolleret og verificeret.
Indflytning kan ske den snarest.
Lejligheden har sit eget køkken. Der er komfur.
Lejligheden har eget badeværelse. Der er vaskemaskine og tørretumbler.
Husdyr er ikke tilladt.
Der er egen indgang.
Indkøb findes lige i nærheden.
Der er transportmuligheder lige i nærheden.
Contact landlord
Yderligere information fra udlejer: Det bedste fra begge verdener - en skøn beliggenhed i det charmerende Trøjborg-kvarter, hvor caféer, spe­ci­al­bu­tik­ker og dag­lig­va­re­ind­køb ligger lige om hjørnet, samtidig med at området er fredeligt og tilbagetrukket fra de store veje. Fuldt udstyret køkken med kvalitets-hvidevarer Gulvvarme i alle rum for ekstra komfort
Annoncedato: Monday, December 1, 2025

DIBS - Payments made easy

© 1998 - 2025 Boligbasen ApS, Lautruphøj 1-3, 2750 Ballerup, Cvr.: 28313756